LGMG Off-Highway Dump Truck 2024 – Frame – I1400-2714013925
Category: 2024 > Off-Highway Dump Truck > MT86H > M086HW3A0A021
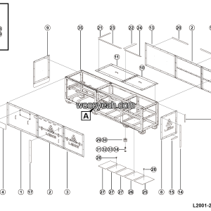
Parts List:
| No. | Part Name | Part Number | Qty |
|---|---|---|---|
| 1 | ASSEMBLY OF TREADLE ON LEFT | 27140129511 | 2 |
| 2 | Middle seat | 27140124731 | 2 |
| 3 | Bolt GB5786-M16*1.5*60-12.9 | 4011010219 | 21 |
| 4 | NUT GB6185-M18*1.5EpZn-12 | 4013010252 | 64 |
| 5 | Washer GB1230-18EpZn-45 | 4015010219 | 48 |
| 6 | Bolt GB5785-M18*1.5*80-12.9 | 4011010700 | 12 |
| 7 | Rivet GB867-14*52 | 4019000115 | 8 |
| 8 | Bolt GB5786-M18*1.5*55-12.9 | 4011010739 | 36 |
| 9 | Seat one | 27140119051 | 1 |
| 10 | Bolt GB5786-M18*1.5*65-12.9 | 4011010740 | 16 |
| 11 | 1 | 27140139261 | 1 |
| 12 | Superstructure connect plate | 27140104751 | 4 |
| 13 | Beam assembly | 27140125671 | 1 |
| 14 | Beam assembly | 27140113101 | 1 |
| 15 | Balance shaft reinforce transverse beam assembly | 27140118964 | 1 |
| 16 | Final beam assembly | 27140126562 | 1 |
| 17 | Trimmed gasket | 27140124532 | 2 |
| 18 | Trimmed gasket | 27140124522 | 2 |
| 19 | Nut GB6170-M10EpZn-8 | 4013000007 | 3 |
| 20 | Bolt GB5783-M10*30EpZn-8.8 | 4011000084 | 3 |
| 21 | Plate | 27140129401 | 1 |
| 22 | 1 | 27140139271 | 1 |
| 23 | MIDDLE AXLE HOUSING ASSEMBLY | 27140129521 | 1 |
| 24 | 1 | 27140139281 | 1 |
| 25 | 1 | 27140139291 | 1 |
| 26 | Nut GB6185.2-M16*1.5-12 | 4013010222 | 93 |
| 27 | BOLT GB5786-M16*1.5*50-12.9 | 4011010738 | 49 |
| 28 | Rivet GB867-14*65 | 4019000120 | 64 |
| 29 | Seat | 27140119021 | 3 |
| 30 | BOLT GB5785-M16*1.5*75-12.9 | 4011010391 | 23 |












