LGMG Mine Truck 2026 – Front suspension lh lwr arm assy – G1201-2712018545.S1B
Category: 2026 > Mine Truck > RTE136 > R1361E0A0A403
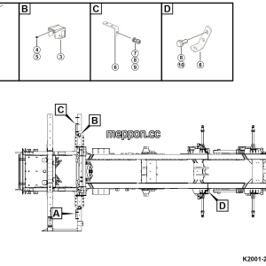
Parts List:
| No. | Part Name | Part Number | Qty |
|---|---|---|---|
| 1 | Front suspension lh lwr arm wldmt | 27120185472 | 1 |
| 2 | Bearing GB9163-GEG70ES-2RS | 4021010011 | 2 |
| 3 | Snap ring GB893-120-65Mn | 4015010553 | 2 |
| 4 | bear GB9163-GEG90ES-2RS | 4021010005 | 1 |
| 5 | Flange 206*134*30 | 27120185511 | 1 |
| 6 | Bolt GB5783-M12*45flZnyc-12.9-480 | 4011010923 | 6 |
| 7 | Washer GB1230-12flZnyc-45-480 | 4015010377 | 6 |
| 8 | Grease nipple JB7940.1-M10*1 | 4030000065 | 3 |
| 9 | Butter nozzle cap JXHF-00006 | 4120000015 | 3 |













