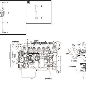
LGMG MT95H Mine Truck – Preheat electrical system assy – K3500-2735010027

SKU: K3500-2735010027 Category:

LGMG MT95H Mine Truck – Preheat electrical system assy – K3500-2735010027

Category: Mine Truck > MT95H > M095HWAA0

Parts List:

No. Part Name Part Number Qty
1 Power cord p15*5000 27350100281 1
2 Wire 27350100171 1
3 Washer GB97.1-5EpZn-300HV 4015000110 2
4 Bolt GB5783-M5*16EpZn-8.8 4011010096 2
5 No longer used 4013000118 2
6 Wire 27350100221 1
7 Washer GB97.1-6EpZn-300HV 4015000207 2
8 Bolt GB5783-M6*16EpZn-8.8 4011000289 2
9 Nut GB6170-M6EpZn-8 4013000028 2
10 Contactor JCC200/1C24.48A 4130000628 1