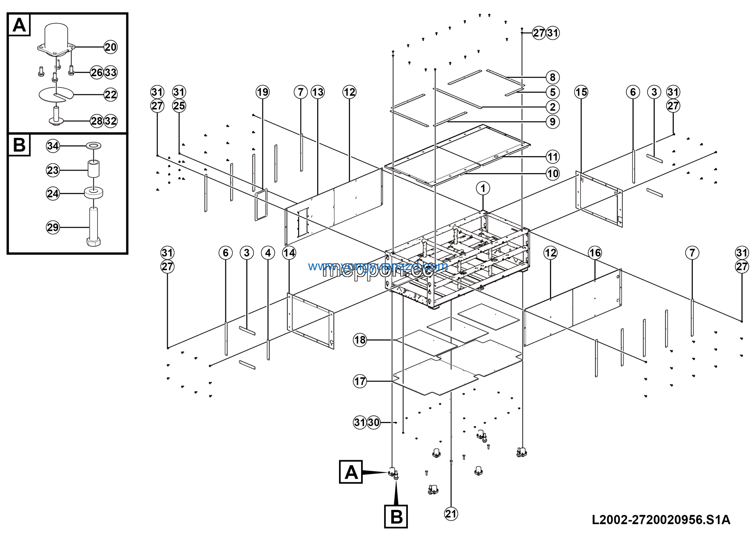
LGMG MTE106H 2025 – Lh battery box installation – L2002-2720020956.S1A

Category:

LGMG MTE106H 2025 – Lh battery box installation – L2002-2720020956.S1A

Category: 2025 > MTE106H > C106HE0A0A905

Parts List:

No. Part Name Part Number Qty
1 Heat insulation layer 27200178221 1
2 Heat insulation layer 27200191931 1
3 Heat insulation layer 1135*670*12 27200179811 2
4 Heat insulation layer 1135*670*12 27200179841 1
5 Side heat insulation layer 1079*670*12 27200198881 1
6 Side heat insulation layer 1079*670*12 27200198891 1
7 Heat insulation layer 1135*670*12 27200180501 1
8 Bottom heat insulation layer 27200189271 2
9 Bottom heat insulation 873*548*10 27200178511 3
10 Inspection hole cover plate assy 27200175811 1
11 Battery box wldmt 27200191921 1
12 Silicone oil shock absorber 10074-01-A1-ZY 4190708867 6
13 Water drain hole protector 27200172671 4
14 Plate 27130122211 6
15 Plate 27200151411 4
16 Spring 27130116051 4
17 Bolt GB5783-M10*20flZnyc-8.8-480 4011010748 8
18 Bolt GB5783-M10*25EpZn-8.8 4011000082 24
19 Bolt GB5783-M10*35flZnyc-8.8-480 4011010727 69
20 Bolt GB5783-M16*55EpZn-12.9 4011000827 6
21 BOLT GB5785-M30*2*130EpZn-8.8 4011000410 4
22 Hold-down strip 1101*45*6 27200164811 1
23 Nut GB6185.1-M10flZnyc-8-480 4013010292 22
24 Washer GB96.1-10flZnyc-300HV-480 4015010278 99
25 Washer GB96.1-16EpZn-300HV 4015000279 6
26 Washer GB97.1-10EpZn-300HV 4015000162 24
27 Washer GB97.1-30EpZn-300HV 4015000119 4
28 Hold-down strip 360*45*6 27200160891 4
29 Hold-down strip 360*45*6 27200180461 2
30 Hold-down strip 400*45*6 27200164821 1
31 Hold-down strip 600*45*6 27200179921 2
32 Hold-down strip 670*45*6 27200179911 9
33 Hold-down strip 860*45*6 27200164801 2
34 Hold-down strip ⅱ 751*45*6 27200160881 3