LGMG Off-Highway Dump Truck 2022 – Cab electrical system – K1300-2713013430.S1A
Category: 2022 > Off-Highway Dump Truck > MT106H > -M106HW3A2A002
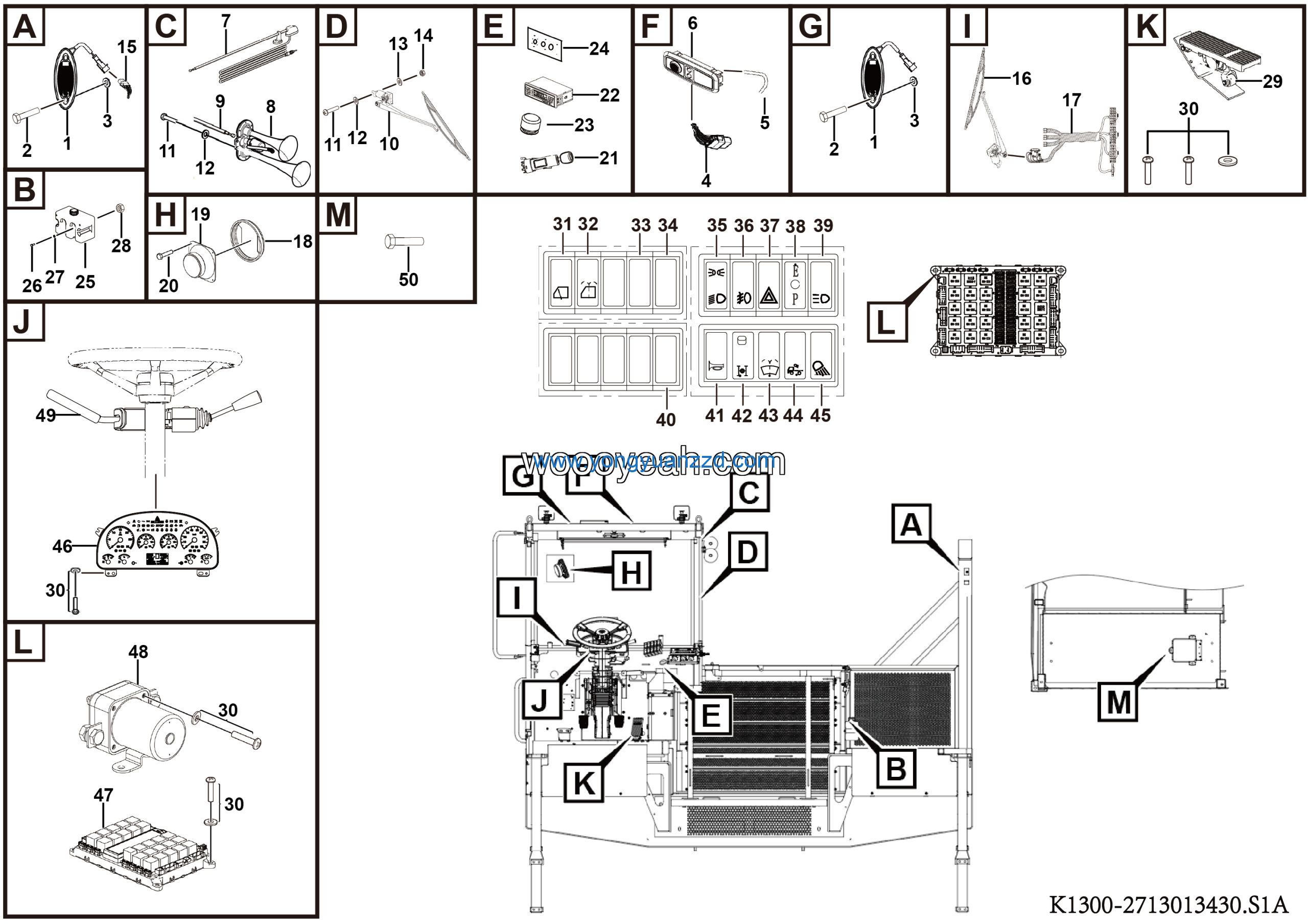
Parts List:
| No. | Part Name | Part Number | Qty |
|---|---|---|---|
| 1 | Side wiper sys | 4130703360 | 1 |
| 2 | Screw GB818-M6*16EpZn-8.8 | 4014000131 | 3 |
| 3 | Washer GB97.1-6EpZn-300HV | 4015000207 | 3 |
| 4 | Washer GB93-6-65Mn | 4015000035 | 1 |
| 5 | Nut GB6170-M6EpZn-8 | 4013000028 | 1 |
| 6 | Wire | 27200107861 | 1 |
| 7 | FR wiper assy sys | 4130703176 | 1 |
| 8 | Cab harness | 27130134311 | 1 |
| 9 | Net cover TH103X0307 | 4130000301 | 2 |
| 10 | Speaker GS1033 | 4130001111 | 2 |
| 11 | SMG-011 Side marker lamp 3112040324 | 4130001148 | 3 |
| 12 | Screw GB818-M5*20EpZn-4.8 | 4014000042 | 10 |
| 13 | Lgnition lock assy CMT70 | 4130001191 | 1 |
| 14 | Radio SL-560 | 4130001110 | 1 |
| 15 | Cigarette lighter 8EZ 008 022-01 | 4130000476 | 1 |
| 16 | Plate | 27130118971 | 1 |
| 17 | Double scrubber pot | 4130703180 | 1 |
| 18 | Bolt GB5783-M8*25EpZn-8.8 | 4011000106 | 2 |
| 19 | Washer GB97.1-8EpZn-300HV | 4015000072 | 2 |
| 20 | Nut GB889.1-M8EpZn-8 | 4013000210 | 2 |
| 21 | ELEK accelerator pedal 403269 | 4130701363 | 1 |
| 22 | Bolt GB5783-M4*20EpZn-8.8 | 4011000615 | 6 |
| 23 | Self-assembled standard parts assembly | 27130121631 | 1 |
| 24 | Cab RR work lamp rocker switch JK939C | 4130000342 | 1 |
| 25 | Wiper washing rocker switch JK939C | 4130001238 | 1 |
| 26 | Mid single frame JK931-01ZKJ | 4130000467 | 9 |
| 27 | Side single Frame JK931-01CKJ | 4130000463 | 6 |
| 28 | Work/position light rocker switch JK939C | 4130000318 | 1 |
| 29 | FR fog lamp rocker switch JK939C | 4130000314 | 1 |
| 30 | Central alarm rocker switch JK939C | 4130000320 | 1 |
| 31 | Heavy/lamp load rocker switch JK939C | 4130701657 | 1 |
| 32 | Main-beam headlamp rocker switch JK939C | 4130000331 | 1 |
| 33 | Washer GB97.1-4EpZn-300HV | 4015000135 | 6 |
| 34 | Cover plate | 4130000328 | 12 |
| 35 | Horn rocker switch JK939C | 4130000315 | 1 |
| 36 | Rocker switch JK939C(Differential) | 4130000317 | 1 |
| 37 | Wiper washing rocker switch JK939C | 4130000819 | 1 |
| 38 | Side window wiper rocker switch JK939C | 4130000341 | 1 |
| 39 | RR working lamp rocker switch JK939C | 4130000480 | 1 |
| 40 | Stepping instrument panel | 4130701335 | 1 |
| 41 | Elec box 202114057 | 4130001007 | 1 |
| 42 | Contactor | 4130701341 | 1 |
| 43 | Combination switch CS-102621 | 4130001174 | 1 |
| 44 | Wire | 27130125461 | 1 |
| 45 | Screw GB818-M5*16EpZn-4.8 | 4014000088 | 3 |
| 46 | Wire | 27130125451 | 1 |
| 47 | Indoor ceiling lamp PL0057 | 4130703362 | 1 |
| 48 | Telescopic antenna JS3480 | 4130000826 | 1 |
| 49 | Dual tone air horn 379803022309 | 4130000386 | 1 |
| 50 | Pipe | 27110104052 | 1 |











