LGMG Off-Highway Dump Truck 2021 – Fuel water hanbao – A0100-4110702781
Category: 2021 > Off-Highway Dump Truck > MT86H > M086HWC62
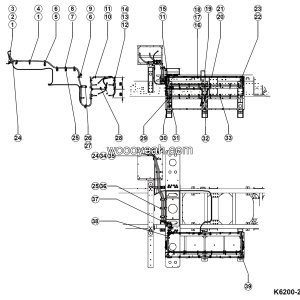
Parts List:
| No. | Part Name | Part Number | Qty |
|---|---|---|---|
| 1 | Electric fuel transfer pump assy 1000750104 | 4110001939067 | 1 |
| 2 | Fuel coarse filter element 1000053558 | 4110001939068 | 2 |
| 3 | Water removal safe filter sealing ring 612600081327 | 4110000001642 | 2 |
| 4 | Water cup assy 612600083329 | 4110001939070 | 1 |
| 5 | Electric fuel transfer pump controller 1003600426 | 4110001939071 | 1 |
| 6 | Water cup assy 610800080797 | 4110001939072 | 1 |












