LGMG Off-Highway Dump Truck 2024 – Tiltable LH cab LG13-JSS-8888 – L1900-4190708888
Category: 2024 > Off-Highway Dump Truck > MT106H > M106HW3A0M316
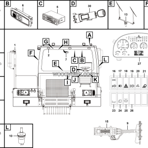
Parts List:
| No. | Part Name | Part Number | Qty |
|---|---|---|---|
| 1 | Bridge electrical system | 27130141391 | 1 |
| 2 | RH blind mirror | 4190002282 | 1 |
| 3 | Steering column cover(Rear) | 4190002230 | 1 |
| 4 | Steering column under shield(China Ⅲ) | 4190002229 | 1 |
| 5 | Steering column cover(Front) | 4190002231 | 1 |
| 6 | Cab body | 4190001454 | 1 |












